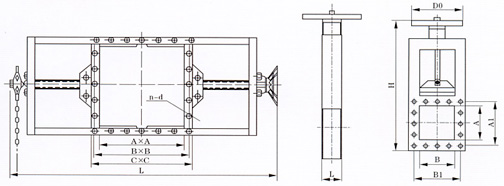
結構簡單、操縱靈活、重量輕、無卡阻、特別適用于各類固體物料和50mm左右塊狀、團狀物料的輸送及流量調節,安裝不受角度限制,操作方便,能隨時調整尺度。
| 類別 | A×A | B×B | C×C | H | L | n-d | 重量 |
|---|---|---|---|---|---|---|---|
| 單向 | 200×200 | 256×256 | 296×296 | 820 | 100 | 8-Φ12 | 62 |
| 250×250 | 306×306 | 346×346 | 930 | 100 | 8-Φ14 | 70.5 | |
| 300×300 | 356×356 | 396×396 | 1050 | 100 | 8-Φ14 | 81 | |
| 400×400 | 456×456 | 496×496 | 140 | 100 | 12-Φ14 | 114 | |
| 450×450 | 510×510 | 556×556 | 1450 | 120 | 12-Φ18 | 130 | |
| 500×500 | 560×560 | 606×606 | 1610 | 120 | 16-Φ18 | 147 | |
| 雙向 | 600×600 | 660×660 | 706×706 | 1830 | 120 | 16-Φ18 | 169 |
| 700×700 | 770×770 | 820×820 | 2130 | 140 | 20-Φ18 | 236 | |
| 800×800 | 870×870 | 920×920 | 2440 | 140 | 20-Φ18 | 303 | |
| 900×900 | 974×974 | 1030×1030 | 2660 | 160 | 27-Φ23 | 424 | |
| 1000×1000 | 10741074 | 1130×1130 | 2870 | 160 | 24-Φ23 | 636 | |
| 說明 | LMD-單向 | I-手輪 | 距地面小于1.7米用手輪,大于1.7米用鏈輪 鏈條節數M=0.105X-113(X是絲桿中心離地面度度) |
||||
| LMS-雙向 | Ⅱ-鏈輪 | ||||||
注:本閥可按用戶設計制造;
主營產品:氣動調節閥 - 電動調節閥 - 自力式調節閥
版版權所有 © 上海大田閥門管道工程有限公司
地址:上海市浦東新區川宏路528號宏圖大樓5樓
