Q347F蝸輪球閥采用成形聚四氟乙烯填料,適用于大多數高中壓燃氣輸送埸合,浮動密封結構,蝸輪驅動操作力矩平穩,O形密封圈用來防止外部雜質進入閥門內部。并保持球閥長期密封性能。

| 設計、制造 | 法蘭連接 | 結構長度 | 公稱通徑 | 公稱壓力 |
|---|---|---|---|---|
| GB/T12237-89、 JIS、API |
JB/T79-94、GB9113-2000、 ANSI B16.5 |
GB12221-89、JIS、API | DN80~600mm | PN1.6、2.5、4.0、6.4MPa |
| 公稱壓力 | 殼體試驗 | 密封試驗 | 適用介質 | 適宜溫度 |
|---|---|---|---|---|
| 1.6 | 2.4 | 1.76 | 液化氣、天然氣等 | -40~+80℃ |
| 2.5 | 3.75 | 2.75 | ||
| 4.0 | 6.0 | 4.4 | ||
| 6.4 | 9.6 | 7.04 |
| 配管法蘭 | 公稱壓力或壓力級 | 法蘭密封面 | 產品名稱 | |||||||||
|---|---|---|---|---|---|---|---|---|---|---|---|---|
| JB/T79-94 GB9112-9131 | PN1.6MPa | 凸面 (光滑面) |
Q41 7F-16C | Q41 7F-16P | Q41 7F-16CP8 | Q41 7F-16P3 | Q41 7F-16R | Q41 7F-16R8 | Q41 7F-16R3 | |||
| PN2.5MPa | Q41 7F-25 | Q41 7F-25P | Q41 7F-25CP8 | Q41 7F-25P3 | Q41 7F-25R | Q41 7F-25R8 | Q41 7F-25R3 | |||||
| PN4.0MPa | 凹凸面 | Q41 7F-40 | Q41 7F-40P | Q41 7F-40CP8 | Q41 7F-40P3 | Q41 7F-40R | Q41 7F-40R8 | Q41 7F-40R3 | ||||
| PN6.4MPa | Q41 7F-64 | Q41 7F-64P | Q41 7F-64CP8 | Q41 7F-64P3 | Q41 7F-64R | Q41 7F-64R8 | Q41 7F-64R3 | |||||
| ANSI B16.5 | 150Lb-900Lb | 凸面 | Q41 7F-150Lb | Q41 7F-150Lb (P) | Q41 7F-150Lb(CP8) | Q41 7F-150Lb (P3) | Q41 7F-150Lb(R) | Q41 7F-150Lb (R8) | Q41 7F-150Lb (R3) | |||
| JISB2212 | 10K | Q41 7F-10K | Q41 7F-10K(P) | Q41 7F-10K (CP8) | Q41 7F-10K(P3) | Q41 7F-10K (R) | Q41 7F-10K(R8) | Q41 7F-10K(R3) | ||||
| JISB2214 | 20K | Q41 7F-20K | Q41 7F-20K (P) | Q41 7F-20K(CP8) | Q41 7F-20K(P3) | Q41 7F-20K(R) | Q41 7F-20K (R8) | Q41 7F-20K(R3) | ||||
| 主要零件 材料 |
閥 體 | WCB | ZG1Cr18Ni9Ti | CF8(304) | CF3(304) | ZG1Cr18Ni 12Mo2Ti |
CF8M(316) | CF3M(316L) | ||||
| 球體、閥體 | 2Cr13 | 1Cr18Ni9Ti | 0Cr19Ni9 (304) |
00Cr19Ni11 (304L) |
1Cr18N i12Mo2Ti |
0Cr17Ni 12Mo2(316) |
00Cr17Ni 14Mo2(316L) |
|||||
| 密封圈 | 增強聚四氟乙烯、對位聚苯 | |||||||||||
| 適用 工況 |
適用介質 | 水、蒸汽、 液化氣、油品 |
硝酸等腐蝕性介質 | 強氧化性 介質 |
醋酸等腐蝕性介質 | 尿素等腐蝕性介質 | ||||||
| 適用溫度(℃) | -29-180(增強聚四氟乙烯),-29-300(對位聚苯)<390(耐高溫SFX-IG) | |||||||||||
| 蝸輪傳動球閥 | 在相應的手動型號的Q后插入“3”表示,示例:Q347F-40P | |||||||||||
| 氣動球閥 | 在相應的手動型的Q后插入“6”表示,示例:Q647F-40P。氣動裝置的氣源壓力為0.4~0.7MPa | |||||||||||
| 電動球閥 | 在相應的手動型的Q后插入“9”表示,示例:Q947F-4 | |||||||||||
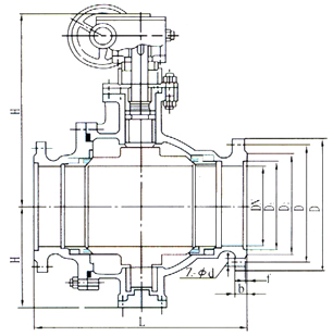
| 公稱 通徑DN |
公稱 壓力 |
尺寸(mm) | 重量 | |||||||||||||
|---|---|---|---|---|---|---|---|---|---|---|---|---|---|---|---|---|
| L | d1 | D | D1 | D2 | b | z-фd | H | (kg) | ||||||||
| 41型 | 47型 | 全通徑 | 縮徑 | 41型 | 641型 | 347型 | 647型 | 41型 | 347型 | |||||||
| 50 | 1.0 | 178 | 216 | 50 | - | 160 | 125 | 100 | 16 | 4-18 | 140 | 285 | - | - | 10 | 15 |
| 65 | 190 | 241 | 65 | - | 180 | 145 | 120 | 18 | 4-18 | 164 | 385 | - | - | 16 | 20 | |
| 80 | 203 | 283 | 80 | 65 | 195 | 160 | 135 | 20 | 4-18 | 178 | 395 | - | - | 19 | 24 | |
| 100 | 229 | 305 | 100 | 80 | 215 | 180 | 155 | 20 | 8-18 | 206 | 420 | - | - | 32 | 40 | |
| 125 | 356 | 356 | 125 | 100 | 245 | 210 | 185 | 22 | 8-18 | 292 | 550 | - | 542 | 54 | 62 | |
| 150 | 394 | 394 | 150 | 125 | 280 | 240 | 210 | 22 | 8-23 | 320 | 580 | 305 | 572 | 80 | 113 | |
| 200 | 457 | 457 | 200 | 150 | 335 | 295 | 265 | 24 | 8-23 | 365 | 620 | 398 | 636 | 135 | 185 | |
| 250 | 533 | 533 | 250 | 200 | 390 | 350 | 320 | 26 | 12-23 | 420 | 660 | 495 | 726 | - | 240 | |
| 300 | - | 610 | 300 | 250 | 440 | 400 | 368 | 26 | 12-23 | - | - | 580 | 859 | - | 390 | |
| 350 | - | 686 | 350 | 300 | 500 | 460 | 428 | 26 | 16-23 | - | - | 625 | 927 | - | 505 | |
| 400 | - | 762 | 400 | 350 | 565 | 515 | 482 | 26 | 16-25 | - | - | 720 | 1080 | - | 750 | |
| 450 | - | 864 | 450 | 350 | 615 | 565 | 532 | 28 | 20-25 | - | - | 770 | 1120 | - | 930 | |
| 500 | - | 914 | 500 | 400 | 670 | 620 | 585 | 28 | 20-25 | - | - | 840 | 1150 | 975 | ||
| 15 | 1.6 | 108 | 140 | 15 | - | 95 | 65 | 45 | 14 | 4-14 | 75 | 205 | - | - | 2.5 | - |
| 20 | 117 | 152 | 20 | - | 105 | 75 | 55 | 14 | 4-14 | 84 | 210 | - | - | 3 | - | |
| 25 | 127 | 165 | 25 | - | 115 | 85 | 65 | 14 | 4-14 | 90 | 220 | - | - | 4.5 | - | |
| 32 | 140 | 180 | 32 | - | 135 | 100 | 78 | 16 | 4-18 | 107 | 245 | - | - | 6.5 | - | |
| 40 | 165 | 190 | 40 | - | 145 | 110 | 85 | 16 | 4-18 | 130 | 270 | - | - | 8.5 | - | |
| 50 | 178 | 216 | 50 | - | 160 | 125 | 100 | 16 | 4-18 | 150 | 290 | - | - | 10 | 15 | |
| 65 | 190 | 241 | 65 | - | 180 | 145 | 120 | 18 | 4-18 | 180 | 375 | - | - | 16 | 20 | |
| 80 | 203 | 283 | 80 | 65 | 195 | 160 | 135 | 20 | 8-18 | 190 | 395 | - | - | 19 | 24 | |
| 100 | 305 | 305 | 100 | 80 | 215 | 180 | 155 | 20 | 8-18 | 210 | 400 | - | - | 33 | 40 | |
| 125 | 356 | 356 | 125 | 100 | 245 | 210 | 185 | 22 | 8-18 | 300 | 425 | - | 542 | 55 | 62 | |
| 150 | 394 | 394 | 150 | 125 | 280 | 240 | 210 | 24 | 8-23 | 320 | 555 | 305 | 572 | 82 | 120 | |
| 200 | 457 | 457 | 200 | 150 | 335 | 295 | 265 | 26 | 12-23 | 365 | 580 | 398 | 736 | 140 | 195 | |
| 250 | 533 | 533 | 250 | 200 | 405 | 355 | 320 | 30 | 12-25 | 430 | 620 | 495 | 890 | - | 260 | |
| 300 | - | 610 | 300 | 250 | 460 | 410 | 375 | 30 | 12-25 | - | 660 | 580 | 910 | - | 395 | |
| 350 | - | 686 | 350 | 300 | 520 | 470 | 435 | 34 | 16-25 | - | - | 625 | 1020 | - | 510 | |
| 400 | - | 762 | 400 | 350 | 580 | 525 | 485 | 36 | 16-30 | - | - | 720 | 1080 | - | 780 | |
| 450 | - | 864 | 450 | 350 | 640 | 585 | 545 | 40 | 20-30 | - | - | 770 | 1120 | - | 950 | |
| 500 | - | 914 | 500 | 400 | 705 | 650 | 608 | 44 | 20-34 | - | - | 840 | 1150 | - | 1190 | |
| 600 | - | 1067 | 600 | 500 | 840 | 770 | 718 | 48 | 20-41 | - | - | 920 | 1230 | - | 2100 | |
| 700 | - | 1245 | 700 | 600 | 910 | 840 | 788 | 50 | 24-41 | - | - | 990 | 1310 | - | 3000 | |
| 15 | 2.5 | 108 | 140 | 15 | - | 95 | 65 | 45 | 16 | 4-14 | 75 | 200 | - | - | 2.5 | - |
| 20 | 117 | 152 | 20 | - | 105 | 75 | 55 | 16 | 4-14 | 84 | 205 | - | - | 3 | - | |
| 25 | 127 | 165 | 25 | - | 115 | 85 | 65 | 16 | 4-14 | 90 | 215 | - | - | 4.5 | - | |
| 32 | 140 | 180 | 32 | - | 135 | 100 | 78 | 18 | 4-18 | 107 | 240 | - | - | 6.5 | - | |
| 40 | 165 | 190 | 40 | - | 145 | 110 | 85 | 18 | 4-18 | 130 | 265 | - | - | 8.5 | - | |
| 50 | 178 | 216 | 50 | - | 160 | 125 | 100 | 20 | 4-18 | 150 | 275 | - | - | 10 | 15 | |
| 65 | 190 | 241 | 65 | - | 180 | 145 | 125 | 22 | 4-18 | 180 | 380 | - | - | 16 | 20 | |
| 80 | 230 | 283 | 80 | - | 195 | 160 | 135 | 22 | 8-18 | 190 | 390 | - | - | 20 | 24 | |
| 公稱 通徑DN |
公稱 壓力 |
尺寸(mm) | 重量 | ||||||||||||||
|---|---|---|---|---|---|---|---|---|---|---|---|---|---|---|---|---|---|
| L | ?d1 | D | D1 | D2 | D6 | b | z-фd | H | (kg) | ||||||||
| 41型 | 47型 | 全通徑 | 縮徑 | 41型 | 641型 | 347型 | 647型 | 41型 | 347型 | ||||||||
| 100 | 2.5 | 305 | 305 | 100 | 80 | 230 | 190 | 160 | - | 24 | 8-23 | 220 | 416 | - | 416 | 35 | 34 |
| 125 | 356 | 381 | 125 | 100 | 270 | 220 | 188 | - | 28 | 8-25 | 316 | 542 | - | 542 | 60 | 69.5 | |
| 150 | 394 | 403 | 150 | 125 | 300 | 250 | 218 | - | 30 | 8-25 | 335 | 575 | 305 | 572 | 92 | 112 | |
| 200 | 457 | 502 | 200 | 150 | 360 | 310 | 278 | - | 34 | 12-25 | 380 | 625 | 398 | 736 | 175 | 205 | |
| 250 | 533 | 568 | 250 | 200 | 425 | 370 | 332 | - | 36 | 12-30 | 435 | 660 | 495 | 890 | - | 285 | |
| 300 | - | 648 | 300 | 250 | 485 | 430 | 290 | - | 40 | 16-30 | - | - | 580 | 910 | - | 475 | |
| 350 | - | 762 | 350 | 300 | 550 | 490 | 448 | - | 44 | 16-34 | - | - | 625 | 1020 | - | 589 | |
| 400 | - | 838 | 400 | 350 | 610 | 550 | 505 | - | 48 | 16-34 | - | - | 720 | 1080 | - | 873 | |
| 450 | - | 914 | 450 | 350 | 660 | 600 | 555 | - | 50 | 20-34 | - | - | 770 | 1120 | - | 1073 | |
| 500 | - | 991 | 500 | 400 | 730 | 660 | 610 | - | 52 | 20-41 | - | - | 840 | 1150 | - | 1379 | |
| 600 | - | 1143 | 600 | 500 | 840 | 770 | 718 | - | 56 | 20-41 | - | - | 920 | 1230 | - | 2415 | |
| 700 | - | 1364 | 700 | 600 | 955 | 875 | 815 | - | 60 | 24-48 | - | - | 990 | 1310 | - | 3450 | |
| 25 | 4.0 | 165 | 165 | 25 | - | 115 | 85 | 65 | 58 | 16 | 4-14 | 90 | 215 | - | - | 5 | - |
| 32 | 178 | 180 | 32 | - | 135 | 100 | 78 | 66 | 18 | 4-18 | 107 | 245 | - | - | 7 | - | |
| 40 | 190 | 190 | 40 | - | 145 | 110 | 85 | 76 | 18 | 4-18 | 130 | 270 | - | - | 9 | - | |
| 50 | 216 | 216 | 50 | - | 160 | 125 | 100 | 88 | 20 | 4-18 | 150 | 365 | - | - | 12 | 18 | |
| 65 | 241 | 241 | 65 | - | 180 | 145 | 120 | 110 | 22 | 8-18 | 180 | 385 | - | - | 18 | 23 | |
| 80 | 283 | 283 | 80 | 65 | 195 | 160 | 135 | 121 | 22 | 8-18 | 190 | 455 | - | - | 28 | 33 | |
| 100 | 305 | 305 | 100 | 80 | 230 | 190 | 160 | 150 | 24 | 8-23 | 220 | 485 | - | 479 | 46 | 55 | |
| 125 | 381 | 381 | 125 | 100 | 270 | 220 | 188 | 176 | 28 | 8-25 | 316 | 650 | - | 646 | 75 | 85 | |
| 150 | 403 | 403 | 150 | 125 | 300 | 250 | 218 | 204 | 30 | 8-25 | 335 | 670 | 305 | 666 | 106 | 120 | |
| 200 | 502 | 502 | 200 | 150 | 375 | 320 | 282 | 260 | 38 | 12-30 | 395 | 820 | 398 | 814 | 190 | 295 | |
| 250 | - | 568 | 250 | 200 | 445 | 385 | 245 | 313 | 42 | 12-34 | - | - | 495 | 890 | - | 482 | |
| 300 | - | 648 | 300 | 250 | 510 | 450 | 408 | 364 | 46 | 16-34 | - | - | 580 | 910 | - | 615 | |
| 350 | - | 762 | 350 | 300 | 570 | 510 | 365 | 422 | 52 | 16-34 | - | - | 625 | 1020 | - | 930 | |
| 400 | - | 838 | 400 | 350 | 655 | 585 | 535 | 474 | 58 | 16-41 | - | - | 720 | 1080 | - | 1100 | |
| 450 | - | 914 | 450 | 350 | 680 | 610 | 560 | 524 | 60 | 20-41 | - | - | 770 | 1120 | - | 1540 | |
| 500 | - | 991 | 500 | 400 | 755 | 670 | 612 | 576 | 62 | 20-48 | - | - | 840 | 1150 | - | 2030 | |
| 600 | - | 1143 | 600 | 500 | 890 | 795 | 730 | 678 | 62 | 20-54 | - | - | 920 | 1230 | - | 2850 | |
| 700 | - | 1346 | 700 | 600 | 995 | 900 | 835 | 768 | 68 | 24-54 | - | - | 990 | 1310 | - | 4250 | |
| 25 | 6.4 | 165 | 216 | 25 | - | 135 | 100 | 78 | 58 | 22 | 4-18 | 95 | 215 | - | - | 8 | - |
| 32 | 178 | 229 | 32 | - | 150 | 110 | 82 | 66 | 24 | 4-23 | 112 | 240 | - | - | 12 | - | |
| 40 | 190 | 241 | 40 | - | 165 | 125 | 95 | 76 | 24 | 4-23 | 132 | 365 | - | - | 14 | - | |
| 50 | 216 | 292 | 50 | 40 | 175 | 135 | 105 | 88 | 26 | 4-23 | 145 | 360 | - | 360 | 18 | 28 | |
| 65 | 241 | 330 | 65 | 50 | 200 | 160 | 130 | 110 | 28 | 8-23 | 168 | 380 | - | 379 | 28 | 38 | |
| 80 | 283 | 356 | 80 | 65 | 210 | 170 | 140 | 212 | 30 | 8-23 | 182 | 452 | - | 452 | 40 | 58 | |
| 100 | 305 | 432 | 100 | 80 | 250 | 200 | 168 | 150 | 32 | 8-25 | 211 | 480 | -340 | 479 | 65 | 85 | |
| 125 | 381 | 508 | 125 | 100 | 295 | 240 | 202 | 176 | 36 | 8-30 | 302 | 464 | 435 | 66 | 98 | 130 | |
| 150 | 403 | 559 | 150 | 125 | 340 | 280 | 240 | 204 | 38 | 8-34 | 330 | 666 | 530 | 666 | 140 | 150 | |
| 200 | - | 660 | 200 | 150 | 405 | 345 | 300 | 260 | 44 | 12-34 | - | - | 615 | 736 | - | 287 | |
| 250 | - | 787 | 250 | 200 | 470 | 300 | 352 | 313 | 48 | 12-41 | - | - | 680 | 790 | - | 540 | |
| 300 | - | 838 | 300 | 250 | 530 | 460 | 412 | 364 | 54 | 16-41 | - | 730 | 870 | - | 780 | ||
| 350 | - | 889 | 350 | 300 | 595 | 525 | 475 | 422 | 60 | 16-41 | - | - | 840 | 1020 | - | 1000 | |
| 400 | - | 991 | 400 | 350 | 670 | 585 | 525 | 474 | 66 | 16-48 | - | - | 925 | 1080 | - | 1300 | |
| 500 | - | 1194 | 500 | 400 | 800 | 705 | 640 | 576 | 70 | 20-54 | - | - | 980 | 1200 | - | 2100 | |
| 600 | - | 1397 | 600 | 500 | 930 | 820 | 750 | 678 | 76 | 20-58 | - | - | - | 1295 | - | 3400 | |
| 32 | 10.0 | 229 | - | 32 | - | 150 | 110 | 82 | 66 | 24 | 4-23 | 115 | 245 | - | - | 15 | - |
| 40 | 241 | - | 40 | - | 165 | 125 | 95 | 76 | 26 | 4-23 | 135 | 270 | - | - | 18 | - | |
| 50 | 292 | 292 | 50 | 40 | 195 | 145 | 112 | 88 | 28 | 4-25 | 150 | 365 | - | 365 | 25 | - | |
| 65 | 330 | 330 | 65 | 50 | 220 | 170 | 138 | 110 | 32 | 8-25 | 170 | 385 | - | 380 | 32 | - | |
| 80 | 356 | 356 | 80 | 65 | 230 | 180 | 148 | 121 | 34 | 8-25 | 190 | 455 | - | 455 | 46 | - | |
| 100 | 432 | 432 | 100 | 80 | 265 | 210 | 172 | 150 | 38 | 8-30 | 215 | 485 | - | 480 | 75 | - | |
| 125 | - | 508 | 125 | 100 | 310 | 250 | 210 | 176 | 42 | 8-34 | - | - | 345 | 670 | - | - | |
| 150 | - | 559 | 150 | 125 | 350 | 290 | 250 | 204 | 46 | 12-34 | - | - | 446 | 676 | - | 160 | |
| 200 | - | 660 | 200 | 150 | 430 | 360 | 312 | 260 | 54 | 12-41 | - | 540 | 746 | - | 350 | ||
| 250 | - | 787 | 250 | 200 | 500 | 430 | 382 | 313 | 60 | 12-41 | - | - | 620 | 798 | - | 590 | |
| 300 | - | 838 | 300 | 250 | 585 | 200 | 442 | 364 | 70 | 16-48 | - | - | 690 | 875 | - | 920 | |
| 350 | - | 889 | 350 | 300 | 655 | 560 | 498 | 422 | 76 | 16-54 | - | - | 730 | 1025 | - | 1100 | |
| 400 | - | 991 | 400 | 350 | 715 | 620 | 558 | 474 | 80 | 16-54 | - | - | 860 | 1090 | - | 1650 | |
| 公稱通徑DN | 壓力級 |
尺寸(mm) |
重量 | ||||||||||||||
|---|---|---|---|---|---|---|---|---|---|---|---|---|---|---|---|---|---|
| L | d1 | D | D1 | D2 | D6 | b | z-Φd | H | (㎏) | ||||||||
| 41型 | 47型 | 全通徑 | 縮徑 | 41型 | 641型 | 347型 | 647型 | 41型 | 347型 | ||||||||
| 15 | JIS10K | 108 | - | 15 | - | 95 | 70 | 52 | - | 12 | 4-15 | 75 | 200 | - | - | 2 | - |
| 20 | 117 | - | 20 | - | 100 | 75 | 58 | - | 14 | 4-15 | 84 | 204 | - | - | 2.5 | - | |
| 25 | 127 | - | 25 | - | 125 | 90 | 70 | - | 14 | 4-19 | 90 | 215 | - | - | 4.5 | - | |
| 32 | 140 | - | 32 | - | 135 | 100 | 80 | - | 16 | 4-1919 | 107 | 240 | - | - | 6 | - | |
| 40 | 165 | - | 40 | - | 140 | 105 | 85 | - | 16 | 4-19 | 127 | 264 | - | - | 7.5 | - | |
| 50 | 178 | - | 50 | - | 155 | 120 | 100 | - | 16 | 4-19 | 140 | 274 | - | - | 9.5 | - | |
| 65 | 190 | - | 65 | - | 175 | 140 | 120 | - | 18 | 4-19 | 164 | 379 | - | - | 14 | - | |
| 80 | 103 | - | 80 | 65 | 185 | 150 | 130 | - | 18 | 8-19 | 177 | 389 | - | - | 19 | - | |
| 100 | 305 | 305 | 100 | 80 | 210 | 175 | 155 | - | 18 | 8-19 | 206 | 746 | - | 416 | 30 | - | |
| 125 | 356 | 356 | 125 | 100 | 250 | 210 | 185 | - | 20 | 8-23 | 292 | 542 | - | 542 | 58 | - | |
| 150 | 394 | 394 | 150 | 125 | 280 | 240 | 215 | - | 22 | 8-23 | 320 | 572 | 305 | 575 | 88 | 118 | |
| 200 | 357 | 457 | 200 | 150 | 330 | 290 | 265 | - | 22 | 12-23 | 365 | 600 | 398 | 740 | 150 | 190 | |
| 250 | - | 533 | 250 | 200 | 400 | 355 | 325 | - | 24 | 12-25 | - | - | 495 | 895 | - | 225 | |
| 300 | - | 610 | 300 | 250 | 445 | 400 | 370 | - | 24 | 16-25 | - | - | 580 | 915 | - | 400 | |
| 350 | - | 686 | 350 | 300 | 490 | 445 | 415 | - | 36 | 16-25 | - | - | 625 | 1020 | - | 516 | |
| 400 | - | 762 | 400 | 350 | 560 | 510 | 475 | - | 28 | 16-27 | - | - | 720 | 1080 | - | 760 | |
| 450 | - | 864 | 450 | 350 | 620 | 565 | 530 | - | 30 | 20-27 | - | - | 770 | 1120 | - | 960 | |
| 500 | - | 914 | 500 | 400 | 675 | 620 | 585 | - | 30 | 20-27 | - | - | 840 | 1150 | - | 1205 | |
| 15 | JIS20K | 140 | - | 15 | - | 95 | 70 | 52 | - | 14 | 4-15 | 75 | 200 | - | - | 3 | - |
| 20 | 152 | - | 20 | - | 100 | 75 | 58 | - | 16 | 4-15 | 84 | 204 | - | - | 4 | - | |
| 25 | 165 | - | 25 | - | 125 | 90 | 70 | - | 16 | 4-19 | 90 | 215 | - | - | 6 | - | |
| 32 | 178 | - | 32 | - | 135 | 100 | 80 | - | 18 | 4-19 | 107 | 140 | - | - | 8 | - | |
| 40 | 190 | 190 | 40 | - | 140 | 105 | 85 | - | 18 | 4-19 | 127 | 264 | - | - | 10 | - | |
| 50 | 216 | 216 | 50 | - | 155 | 120 | 100 | - | 18 | 8-19 | 140 | 370 | - | - | 13 | - | |
| 65 | 241 | 241 | 65 | - | 175 | 140 | 120 | - | 20 | 8-19 | 164 | 385 | - | - | 20 | - | |
| 80 | 283 | 283 | 80 | 65 | 200 | 160 | 135 | - | 22 | 8-23 | 187 | 455 | - | - | 32 | - | |
| 100 | 305 | 305 | 100 | 80 | 225 | 185 | 160 | - | 24 | 8-23 | 215 | 480 | - | 480 | 52 | - | |
| 125 | 381 | 381 | 125 | 100 | 270 | 225 | 195 | - | 26 | 8-25 | 305 | 650 | - | 465 | 82 | - | |
| 150 | 403 | 403 | 150 | 125 | 305 | 260 | 230 | - | 28 | 12-25 | 330 | 680 | 305 | 680 | 115 | 138 | |
| 200 | 502 | 502 | 200 | 150 | 350 | 305 | 275 | - | 30 | 1225 | 375 | 820 | 398 | 820 | 200 | 230 | |
| 250 | - | 568 | 250 | 200 | 430 | 380 | 345 | - | 34 | 12-27 | - | - | 495 | 895 | - | 390 | |
| 300 | - | 648 | 300 | 250 | 480 | 430 | 395 | - | 36 | 16-27 | - | - | 580 | 915 | - | 560 | |
| 350 | - | 762 | 350 | 300 | 540 | 480 | 440 | - | 40 | 16-33 | - | - | 625 | 1020 | - | 780 | |
| 400 | - | 838 | 400 | 350 | 605 | 540 | 495 | - | 46 | 16-33 | - | - | 720 | 1085 | - | 920 | |
| 450 | - | 914 | 450 | 350 | 675 | 560 | 560 | - | 48 | 20-33 | - | - | 770 | 1120 | - | 1150 | |
| 500 | - | 991 | 500 | 400 | 730 | 660 | 615 | - | 50 | 20-33 | - | - | 840 | 1160 | - | 1350 | |
| 公稱通徑 in |
壓力級 | 尺寸(㎜) | 重量 | |||||||||||||
|---|---|---|---|---|---|---|---|---|---|---|---|---|---|---|---|---|
| L | D1 | D | D1 | D2 | b | z-Φd | H | (㎏) | ||||||||
| 41型 | 47型 | 全通徑 | 縮徑 | 41型 | 641型 | 347型 | 647型 | 41型 | 347型 | |||||||
| 3/4 | Class150 | 117 | - | 19 | - | 98 | 70 | 43 | - | 4-15 | 84 | 205 | - | - | 2.5 | - |
| 1 | 127 | - | 25 | - | 108 | 79.5 | 51 | 12 | 4-15 | 90 | 215 | - | - | 4.5 | - | |
| 11/4 | 140 | - | 32 | - | 117 | 89 | 64 | 13 | 4-15 | 107 | 240 | - | - | 6 | - | |
| 11/2 | 165 | - | 38 | - | 127 | 98.5 | 73 | 15 | 4-15 | 127 | 265 | - | - | 7.5 | - | |
| 2 | 178 | - | 51 | - | 152 | 120.5 | 92 | 16 | 4-19 | 140 | 275 | - | - | 9.5 | - | |
| 21/2 | 190 | - | 64 | - | 178 | 139.5 | 102 | 18 | 4-19 | 160 | 380 | - | - | 14 | - | |
| 3 | 203 | - | 76 | 64 | 190 | 152.5 | 127 | 19 | 4-19 | 180 | 390 | - | - | 19 | - | |
| 4 | 229 | 229 | 102 | 76 | 229 | 190.5 | 157 | 24 | 8-19 | 210 | 415 | - | 516 | 30 | - | |
| 5 | 356 | 356 | 127 | 102 | 254 | 216 | 186 | 24 | 8-22 | 295 | 545 | - | 542 | 58 | - | |
| 6 | 394 | 394 | 152 | 127 | 279 | 241.5 | 216 | 26 | 8-22 | 325 | 575 | 305 | 572 | 88 | 120 | |
| 8 | 457 | 457 | 203 | 152 | 343 | 298.5 | 270 | 29 | 8-22 | 370 | 600 | 398 | 736 | 150 | 195 | |
| 10 | - | 533 | 254 | 203 | 406 | 362 | 324 | 31 | 12-25 | - | - | 495 | 890 | - | 265 | |
| 12 | - | 610 | 305 | 254 | 483 | 432 | 381 | 32 | 12-25 | - | - | 580 | 910 | - | 400 | |
| 14 | - | 686 | 337 | 305 | 533 | 476 | 413 | 35 | 12-29 | - | - | 625 | 1020 | - | 518 | |
| 16 | - | 762 | 387 | 337 | 597 | 540 | 470 | 37 | 16-29 | - | - | 720 | 1080 | - | 780 | |
| 18 | - | 864 | 438 | 387 | 635 | 578 | 533 | 40 | 16-32 | - | - | 770 | 1120 | - | 958 | |
| 20 | - | 914 | 489 | 438 | 699 | 635 | 581 | 43 | 20-32 | - | - | 840 | 1150 | - | 1200 | |
| 24 | - | 1067 | 561 | 489 | 813 | 749.5 | 672 | 48 | 20-35 | - | - | 920 | 1230 | - | 2100 | |
| 28 | - | 1245 | 686 | 591 | 927 | 863.5 | 800 | 72 | 28-35 | - | - | 990 | 1310 | - | 3000 | |
| 3/4 | Class300 | 152 | - | 19 | - | 117 | 82.5 | 43 | 16 | 4-19 | 84 | 205 | - | - | 4 | - |
| 1 | 165 | - | 25 | - | 124 | 89 | 41 | 18 | 4-19 | 91 | 215 | - | - | 6 | - | |
| 11/4 | 178 | - | 32 | - | 133 | 98.5 | 64 | 19 | 4-19 | 107 | 240 | - | - | 8 | - | |
| 11/2 | 190 | - | 38 | - | 156 | 114.5 | 73 | 21 | 4-22 | 127 | 265 | - | - | 10 | - | |
| 2 | 216 | - | 51 | - | 165 | 127 | 92 | 23 | 8-19 | 140 | 360 | - | - | 13 | - | |
| 2//3 | 241 | - | 64 | - | 190 | 149 | 105 | 26 | 8-22 | 164 | 380 | - | - | 20 | - | |
| 3 | 283 | - | 76 | 64 | 210 | 168.5 | 127 | 29 | 8-22 | 177 | 455 | - | - | 32 | - | |
| 4 | 305 | 305 | 102 | 76 | 254 | 200 | 157 | 32 | 8-22 | 206 | 480 | - | 479 | 52 | - | |
| 5 | 381 | 381 | 127 | 102 | 279 | 235 | 186 | 35 | 12-22 | 292 | 645 | - | 646 | 82 | - | |
| 6 | 403 | 403 | 152 | 127 | 318 | 270 | 216 | 37 | 12-22 | 320 | 665 | 305 | 666 | 115 | 145 | |
| 8 | 502 | 502 | 203 | 152 | 381 | 330 | 270 | 42 | 12-25 | 365 | 815 | 398 | 814 | 200 | 240 | |
| 10 | - | 568 | 254 | 203 | 445 | 387.5 | 324 | 48 | 16-29 | - | - | 495 | 890 | - | 400 | |
| 12 | - | 648 | 305 | 254 | 521 | 451 | 271 | 51 | 16-32 | - | - | 580 | 910 | - | 580 | |
| 14 | - | 762 | 337 | 305 | 584 | 514.5 | 413 | 54 | 20-32 | - | - | 625 | 1020 | - | 790 | |
| 16 | - | 383 | 387 | 337 | 648 | 571.5 | 470 | 58 | 20-35 | - | - | 720 | 1080 | - | 940 | |
| 18 | - | 914 | 432 | 337 | 711 | 628.5 | 533 | 61 | 24-35 | - | - | 770 | 1120 | - | 1200 | |
| 20 | - | 991 | 483 | 387 | 775 | 686 | 584 | 64 | 24-35 | - | - | 840 | 1150 | - | 1400 | |
| 24 | - | 1143 | 591 | 483 | 914 | 813 | 692 | 70 | 24-41 | - | - | 920 | 1230 | - | 2550 | |
| 28 | - | 1346 | 686 | 591 | 1035 | 940 | 800 | 86 | 28-45 | - | - | 990 | 1310 | - | 4250 | |
| 1 | Class600 | 216 | - | 25 | - | 124 | 89 | 51 | 18 | 4-19 | 95 | 215 | - | - | 10 | - |
| 11/4 | 229 | - | 32 | - | 133 | 98.5 | 61 | 21 | 4-19 | 112 | 240 | - | - | 15 | - | |
| 11/2 | 241 | - | 38 | - | 156 | 114.5 | 73 | 23 | 4-22 | 132 | 265 | - | - | 18 | - | |
| 2 | 292 | 292 | 51 | 38 | 165 | 127 | 92 | 26 | 8-19 | 145 | 360 | - | 360 | 25 | - | |
| 21/2 | 330 | 330 | 64 | 51 | 190 | 149 | 100 | 29 | 8-22 | 196 | 380 | - | 379 | 32 | - | |
| 3 | 356 | 356 | 76 | 64 | 210 | 168 | 127 | 32 | 8-22 | 182 | 455 | - | 452 | 46 | - | |
| 4 | 432 | 432 | 102 | 76 | 273 | 216 | 157 | 38 | 8-25 | 211 | 480 | - | 479 | 75 | - | |
| 5 | - | 508 | 127 | 102 | 330 | 266.5 | 186 | 45 | 8-29 | - | - | 340 | 646 | - | 130 | |
| 6 | - | 559 | 152 | 127 | 356 | 292 | 216 | 48 | 12-29 | - | - | 435 | 666 | - | 150 | |
| 8 | - | 660 | 200 | 152 | 419 | 349 | 270 | 56 | 12-32 | - | - | 530 | 736 | - | 350 | |
| 10 | - | 787 | 248 | 200 | 508 | 432 | 324 | 64 | 16-35 | - | - | 615 | 790 | - | 580 | |
| 12 | - | 838 | 298 | 248 | 559 | 489 | 381 | 67 | 20-35 | - | - | 680 | 870 | - | 790 | |
| 14 | - | 889 | 327 | 298 | 603 | 527 | 413 | 70 | 20-38 | - | - | 720 | 1020 | - | 980 | |
| 16 | - | 991 | 375 | 327 | 686 | 603 | 470 | 77 | 20-41 | - | - | 840 | 1080 | - | 1300 | |
| 18 | - | 1067 | 432 | 327 | 743 | 654 | 533 | 83 | 20-44 | - | - | 980 | 1120 | - | 1400 | |
| 20 | - | 1194 | 483 | 375 | 813 | 724 | 584 | 89 | 24-44 | - | - | 925 | 1200 | - | 2100 | |
| 2 | Class900 | - | 368 | 47 | - | 216 | 165.1 | 92 | 38.5 | 8-26 | - | - | - | 380 | - | - |
| 21/2 | - | 419 | 57 | 47 | 244 | 190.5 | 105 | 41.5 | 8-29 | - | - | - | 395 | - | - | |
| 3 | - | 381 | 73 | 57 | 241 | 190.5 | 127 | 38.5 | 8-26 | - | - | - | 480 | - | - | |
| 4 | - | 457 | 98 | 73 | 292 | 234.9 | 157 | 44.5 | 8-32 | - | - | 290 | 532 | - | 160 | |
| 5 | - | 559 | 121 | 98 | 349 | 279.4 | 186 | 51.0 | 8-35 | - | - | 340 | 670 | - | 190 | |
| 6 | - | 610 | 141 | 121 | 381 | 317.5 | 216 | 56.0 | 12-39 | - | - | 435 | 703 | - | 220 | |
| 8 | - | 737 | 190 | 146 | 470 | 393.7 | 270 | 63.5 | 12-39 | - | - | 530 | 750 | - | 450 | |
| 10 | - | 838 | 238 | 190 | 545 | 469.9 | 324 | 70.0 | 16-39 | - | - | 615 | 820 | - | 760 | |
| 12 | - | 965 | 282 | 238 | 610 | 533.4 | 381 | 79.5 | 20-39 | - | - | 680 | 900 | - | 1050 | |