您現在所在位置:大田閥門 >> 襯膠閥門(襯里閥門)
G41JW(無襯里)氣動隔膜閥(往復型)專用于控制非腐蝕性或一般腐蝕性介質,閥體內腔表面無襯里或覆有可供選擇的各種橡膠,適用于不同工作溫度和流體管路。
適用溫度:≤85℃、≤100℃、 ≤120℃、≤150℃(按照襯里和隔膜材料)
壓力等級:PN0.6、1.0、1.6 設計與制造:GB122239
結構長度:GB12221、JB1688
法蘭連接尺寸:GB4216、JB78

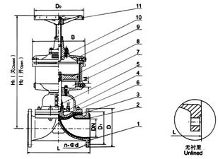
部件列表: 1、閥體 2、閥體襯里 3、隔膜 4、閥瓣 5、下閥桿 6、閥蓋 7、氣缸 8、活塞 9、氣缸蓋 10、上閥桿 11、手輪
閥體:鑄鐵、球墨鑄鐵、碳鋼、不銹鋼
閥蓋:鑄鐵、球墨鑄鐵、碳鋼、不銹鋼
襯里:無襯里、橡膠
隔膜:橡膠
閥瓣:鑄鐵、碳鋼
氣缸:球墨鑄鐵
活塞:碳鋼
閥桿:碳鋼
手輪:鑄鐵
襯里層:電火花檢測
試驗與檢驗按GB/T13297標準
公稱壓力:PN(Mpa)
閥體:PN×1.5
密封:PN×1.1
| DN mm |
公稱壓力 MPa |
工作壓力 MPa |
L (mm) |
D (mm) |
D1 (mm) |
n-φd (mm) |
F (mm) |
H1 (mm) |
H2 (mm) |
D0 (mm) |
B | 氣源壓力 MPa |
氣源接頭 in |
耗氣量 cm3 |
質量 |
|---|---|---|---|---|---|---|---|---|---|---|---|---|---|---|---|
| 15 | 0.6 0.6 | 0.6 | 125 | 95 | 65 | 4-14 | 2 | ||||||||
| 20 | 139 | 105 | 75 | 4-14 | 2 | ||||||||||
| 25 | 145 | 115 | 85 | 4-14 | 2 | 250 | 264 | 120 | 94 | 0.4 | 10×1 | 2.395×102 | 6.5 | ||
| 32 | 160 | 140 | 100 | 4-18 | 2 | 3025 | 328 | 140 | 120 | 0.4 | 12×1.25 | 6.082×102 | |||
| 40 | 180 | 150 | 110 | 4-18 | 3 | 306 | 328 | 140 | 120 | 0.4 | 12×1.25 | 6.082×102 | |||
| 50 | 210 | 165 | 125 | 4-18 | 3 | 379 | 405 | 160 | 185 | 0.4 | 12×1.25 | 1.235×102 | 25 | ||
| 65 | 250 | 185 | 145 | 4-18 | 3 | 467 | 502 | 240 | 245 | 0.5 | 16×1.5 | 3.725×103 | 31.5 | ||
| 80 | 300 | 200 | 160 | 4-18 | 3 | 483 | 523 | 240 | 245 | 0.5 | 16×1.5 | 3.725×103 | 62.5 | ||
| 100 | 350 | 220 | 180 | 8-18 | 3 | 565 | 617 | 280 | 330 | 0.5 | 20×1.5 | 9.458×103 | 93.5 | ||
| 125 | 400 | 250 | 210 | 8-18 | 3 | 664 | 732 | 320 | 380 | 0.5 | 20×1.5 | 1.409×104 | 114 | ||
| 150 | 460 | 285 | 240 | 8-22 | 3 | 750 | 830 | 320 | 470 | 0.5 | 20×1.5 | 2.868×104 | 164 | ||
| 200 | 0.4 | 570 | 340 | 295 | 8-22 | 4 | 930 | 1050 | 400 | 470 | 0.5 | 20×1.5 | 4.619×104 | 249 | |
| 250 | 680 | 395 | 350 | 12-22 | 4 |
溫馨提示:
本文中所有文字、數據、圖片均只適用于參考。需要查看更多的G41JW(無襯里)氣動隔膜閥(往復型)性能參數、結構尺寸參數、價格等詳情,或要求印刷樣本,請聯系我們。
主營產品:氣動調節閥 - 電動調節閥 - 自力式調節閥
版版權所有 © 上海大田閥門管道工程有限公司
地址:上海市浦東新區川宏路528號宏圖大樓5樓
